- Commercial Interior Design
- Hits: 12016
Flexible office space with share offices you ask?
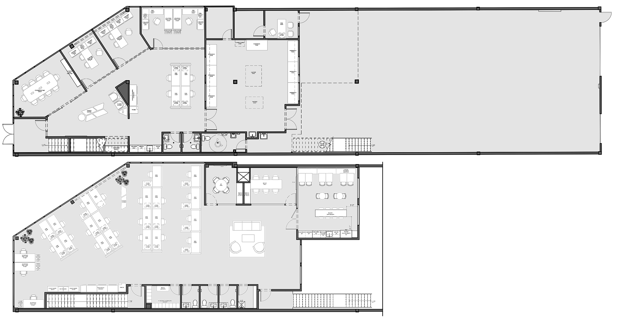
We were given the challenge to create an office space for Telecom Company that works for every employee. From sharing with partners to making comfortable for employees to ride a bike to work and take a shower before they start work, from educational seminars to creative concept offices. The office is located in the Le Plateau-Mont-Royal which is a trendy, pretty and overall, fun areas of the Montreal.

We wanted to develop a concept that has a balance between cozy and business professional and making sure that lighting design is not forgotten.
Lighting design – why and why again! Remember how we feel if do not see well, or when a finish we selected doesn’t look the same, depending on the light sources. Instead of boring you and us with details on the ( do not forget, you are always welcomed to write to us with questions). We made sure that this office space is illuminated with the consistent Kelvin and lumen output through ( thank you to our partner www.iluceconcepts.com)



So, you ask why @CRIO , well, we think of the details far beyond of just a working desk.

Minimalistic but yet cozy Scandinavian interior concept spiced with bright and fun accents!

So, you ask why @CRIO, well, we think of the details far beyond just a working desk.
Project Data: 6 400 sq ft of office space, Le Plateau-Mont-Royal, 2016

















